« À Sant’Elena, l’architecture réveille la mémoire des lieux, réconciliant patrimoine militaire, paysage lagunaire et vie vénitienne. »
En détail
Programme
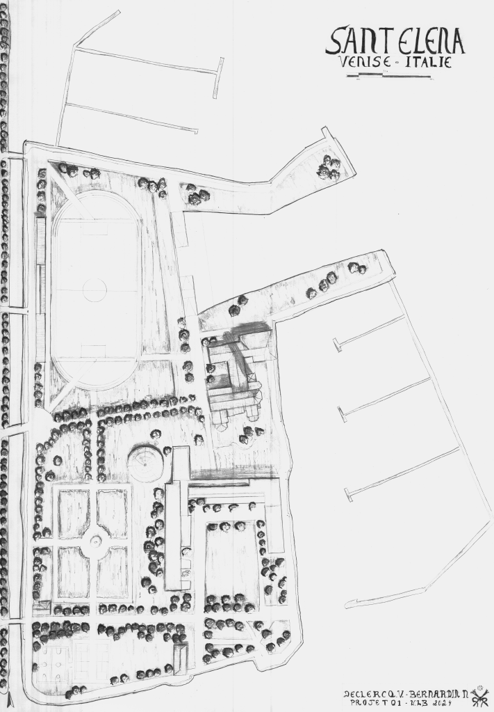
Réaménagement de Sant ’Elena
Lieu
Venise, ITALIE
Coordonnées
45°25’38.2’’N 12°21’56.6’’E
Surface
± 440 000 m²
Année
2024 BA3-Q1
Catégorie
Binôme
Le projet, conçu en binôme, s’attache à retisser les liens entre les Vénitiens et leur île de Sant ’Elena, en réinstaurant un dialogue profond entre architecture, paysage et mémoire collective. Cette intervention s’inscrit dans une volonté de révéler la richesse patrimoniale de l’île, tout en la réinscrivant dans le tissu vivant de Venise.
Notre démarche se concentre sur trois lieux emblématiques : l’école militaire et son jardin, le stade, et la friche Est attenante. Ces lieux, porteurs d’une histoire fragmentée, sont revalorisés par une lecture avec une vision nouvelle et respectueuse de l’héritage.
L’école militaire, marquée par une accumulation d’extensions successives, a peu à peu perdu son identité originelle. En abaissant ses murs et en ouvrant de nouveaux axes de circulation, nous libérons les espaces tout en en diversifiant les usages. L’eau y est réintroduite comme élément structurant, effaçant partiellement les empreintes bâties pour révéler un jardin inspiré du campo vénitien. Ce jardin, centré autour d’un puits, symbole d’une ressource vitale et sacrée, évoque les traditions, vénitiennes. Paysagé avec soin, il tisse une continuité douce vers le monastère et le stade, recréant un espace de rassemblement à la fois ouvert et ancré dans la mémoire du lieu.
La requalification du stade débute par la suppression des gradins, libérant une vue dégagée sur la lagune. En arrière-plan, un bassin redessine le vide urbain et reconfigure les circulations, tout en renforçant la présence de l’eau, matrice de la cité vénitienne. L’accès est repensé grâce à un escalier et une pente douce, favorisant une appropriation fluide et inclusive de l’espace. La friche devient ainsi un vaste bassin aux berges naturelles, dans une logique de réconciliation entre patrimoine naturel et usages contemporains.
Par cette intervention, Sant’Elena retrouve une centralité oubliée. Le projet propose une lecture renouvelée de l’île, entre transmission du patrimoine militaire et ouverture sur le paysage lagunaire, en redonnant aux Vénitiens un lieu de mémoire vivante et de convivialité.

















